About
Team
Projects
Contact
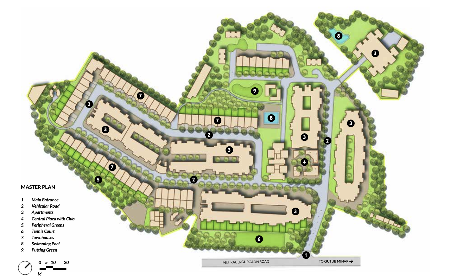
GARDEN ESTATE, GURUGRAM, HARYANA
PROJECT
DETAIL
GARDEN ESTATE, GURUGRAM, HARYANA
>> CONDOMINIUMS
Back